Einbau Multifunktionsraum Kirche Sargstedt
Sargstedt | 2011–2017
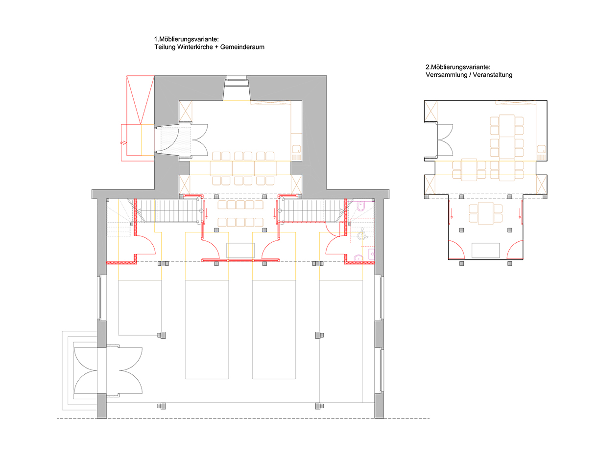
Sanierung der Sakristeien und Einbau eines barrierefreien Multifunktionsraumes für die Gemeinde in die denkmalgeschützte Schinkel-Kirche Sargstedt.
Fördermittelbeantragung und Planung 2011 bis 2012, Realisierung in Bauabschnitten 2012 bis 2017


